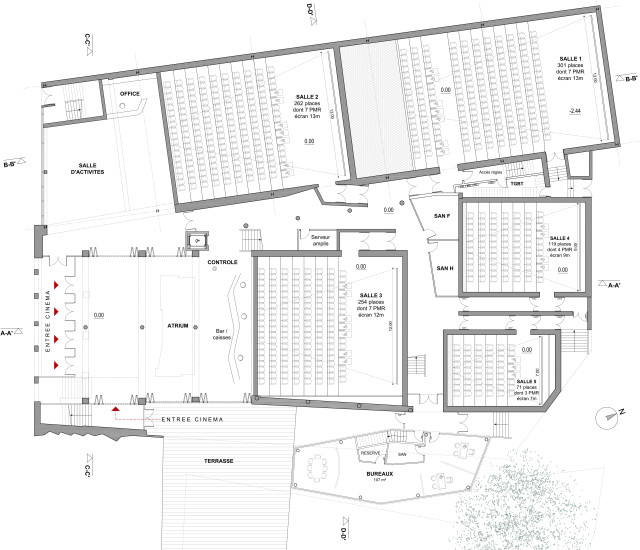
Le site d’implantation du complexe cinématographique est situé au centre, à proximité du cÅ“ur de ville d’Épernay. Il s’agit d’une ancienne salle de spectacles construite au début du XX° siècle, transformée ensuite en complexe cinématographique auquel il a été rajouté deux grandes salles au début des années 2000. Les objectifs du projet de restructuration concernent les points suivants : la modernisation des salles, la création d’un grand hall ouvert sur la ville, l’adjonction d’une septième salle, la mise en accessibilité du site et la refonte de l’image architecturale du multiplexe.
Â
 









