←
« VOLT’ » à Paris 11ème – complexe cinématographique dans la Sous-Station Voltaire pour Réinventer Paris
« Le Relief » à Selestat – construction d’un complexe cinématographique de 10 salles
→
« Les Arches Métropole » à Yvetot – aménagement d’un complexe cinématographique de 7 salles
Publié le
28 avril 2017
par
Admin
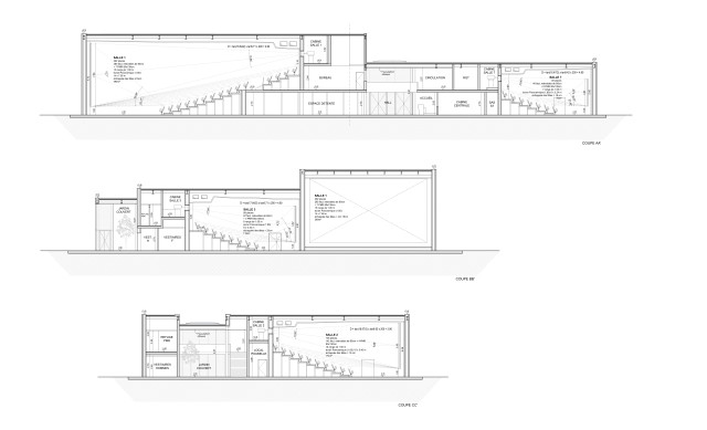
Il s’agit de l’aménagement d’un complexe cinématographique de sept salles dans un ensemble à usage commercial projeté par MW Architecture situé à proximité du centre-ville d’Yvetot . Le bâtiment qui comporte également plusieurs espaces commerciaux en complément du complexe cinématographique s’intègre dans une composition plus importante autour d’une rue de desserte et d’une place qui articule l’ensemble. Il constitue une transition entre le tissu urbain d’habitations en continuité avec le centre-ville d’Yvetot et les emprises commerciales d’échelle plus importante. Le site comporte une zone naturelle inconstructible relié au cœur de ville par une promenade piéton et vélos. Le complexe cinématographique comporte sept salles totalisant 741 fauteuils. Il est organisé autour d’un grand hall promenade traversant, libre d’accès. Ce dernier relit le parvis d’entrée du complexe coté parking avec l’espace paysager et la promenade venant du centre-ville. Les salles sont réparties de part et d’autre du volume double hauteur du hall. Une passerelle traversant l’espace assure la liaison entre les différentes salles. L’extrémité du hall et la salle 2, peuvent fonctionner indépendamment du cinéma pour accueillir certains événements spécifiques.
Ce contenu a été publié dans
Projets
. Vous pouvez le mettre en favoris avec
ce permalien
.
←
« VOLT’ » à Paris 11ème – complexe cinématographique dans la Sous-Station Voltaire pour Réinventer Paris
« Le Relief » à Selestat – construction d’un complexe cinématographique de 10 salles
→
Les commentaires sont fermés.
Nos projets en vidéo
« Les Arts » à Montivilliers – complexe cinémato...
« L’Arsenal » à Valenciennes – Construction...
Selestat – Construction d’un complexe cinématog...
« La Manufacture » à Dieppe – aménagement d&rsqu...
« Emeraude Cinémas » à La Richardais – Construct...
« Les Korrigans » à Guingamp – extension du compl...
« Le Caroussel » à Verdun – complexe cinématogra...
« Le Palace » à Épernay – rénovation d’un...
« Lumière Terreaux » à Lyon – rénovation d’un...
« Lumière Bellecour » à Lyon – rénovation d’u...
« Lumière Fourmi » à Lyon – rénovation d’un...
« Le Grand Large » à Fécamp – extension et réno...
« Le Relief » à Selestat – construction d’un co...
« Les Arches Métropole » à Yvetot – aménagement...
« VOLT’ » à Paris 11ème – complexe cinématogr...
« Le Grand Club » à Mont de Marsan – aménagement...
« Ciné Croisière » à Cernay – construction d’...
« La Fonderie » à Pont-à -Mousson – construction ...
La Colline – Construction d’un complexe cinémat...
Nova Cinémas – Construction d’un Complexe ciné...
Le Cinés Palace – Extension d’un Cinéma à Epi...
« Le Camion Rouge » à Saint Etienne – complexe ci...
« Le Rex  » à Sarlat – complexe cinématographiqu...
« Les Toiles » à Crépy en Valois – complexe cinÃ...
« Le Florival » à Guebwiller – complexe cinémato...
Salle mobile – Cherbourg
Cinéma « Loft » à Châtellerault – complexe de 7...
Cinés Palace – Complexe cinématographique à Epinal
L’Eldorado – Cinémas & Théatre à Saint-P...
Le Plaza – Complexe cinématographique à Marmande
Le Normandy – Complexe cinématographique à Vaucresso...
Le Grand Forum – Cinémas & Théâtre à Louviers
Quai 56 – Complexe cinématographique à Guer
Le Paramount – Restructuration du cinéma Paramount Op...
L’Estran – Complexe cinématographique à Marenn...
Ciné-quai – Complexe cinématographique à Saint-Dizi...
Invest 4 – Ensemble d’habitations à Montreuil
Institut de formation et de soins infirmiers – Amphith...
Parc départemental Haute Ile – Bâtiment d’accu...
Couverture muséographique des thermes Gallo-Romains –...
Paris XVI – Salle de concert Lycée Jean de la Fontain...
Rechercher :